








Garsonieră decomandată | 37,6 mp | Splaiul Unirii - Popești-Leordeni | Preț: 57.200 EURO + TVA | COMISION 0%
Smart Estates oferă spre vânzare garsonieră decomandată, situată într-un bloc nou (an construcție 2021), parte dintr-un ansamblu rezidențial modern, în zona Splaiul Unirii, Popești-Leordeni. Garsoniera este complet mobilată și utilată, gata de mutare și beneficiază de dotări moderne: centrală proprie, lift, interfon și sistem de supraveghere.
Detalii proprietate:
- Tip: garsonieră, decomandată
- Suprafață: 37.6 mp
- Etaj: 10 din 11
- An construcție: 2021
- Stare: complet mobilată și utilată
Preț: 57.200 EURO + TVA
Comision: 0%
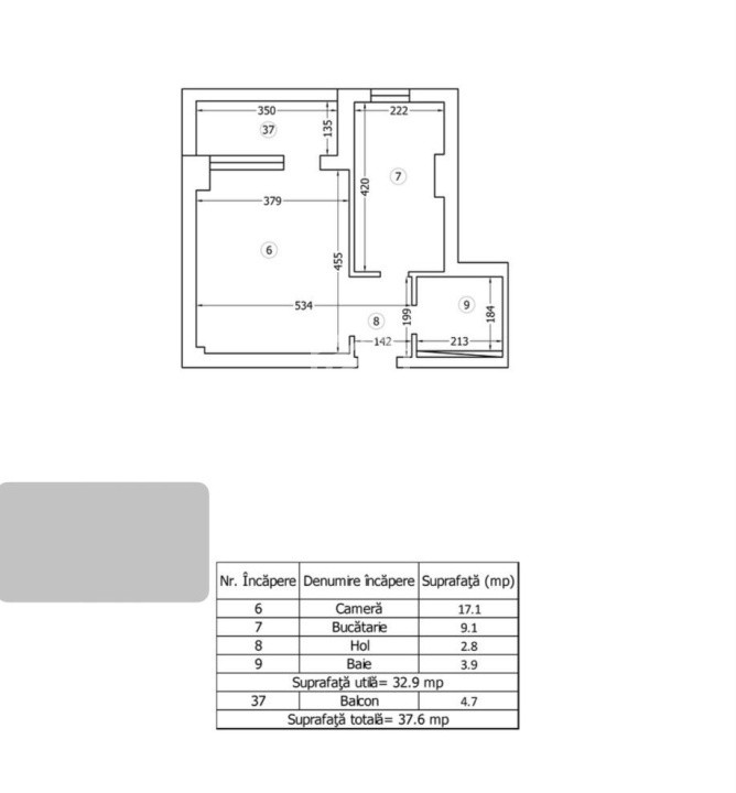
Compartimentare:
- Cameră: 17 mp
- Bucătărie: 9 mp
- Hol: 3 mp
- Baie: 4 mp
- Balcon: 5 mp
Pentru mai multe informații și pentru a programa o vizionare, contactați echipa Smart Estates!