








Apartament 2 camere decomandat | 66 mp | Splaiul Unirii - Popești-Leordeni | Preț: 80.800 EURO + TVA | COMISION 0%
Smart Estates oferă spre vânzare un apartament de 2 camere, decomandat, situat într-un bloc nou (an construcție 2021), parte dintr-un ansamblu rezidențial modern, în zona Splaiul Unirii, Popești-Leordeni. Apartamentul este complet mobilat și utilat, gata de mutare și beneficiază de dotări moderne: centrală proprie, lift, interfon și sistem de supraveghere.
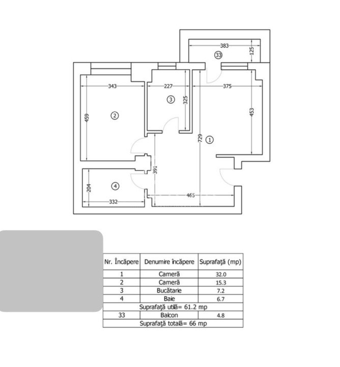
Detalii proprietate:
- Tip: apartament 2 camere, decomandat
- Suprafață: 66 mp
- Etaj: 9 din 11
- An construcție: 2021
- Stare: complet mobilat și utilat
Preț: 80.800 EURO + TVA
Comision: 0%
Compartimentare:
- Living: 32 mp
- Bucătărie: 7 mp
- Dormitor: 15 mp
- Baie: 7 mp
- Balcon: 5 mp
Pentru mai multe informații și pentru a programa o vizionare, contactați echipa Smart Estates!