











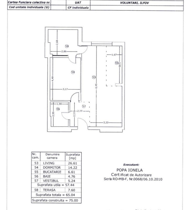
Locuința are o suprafata de 58 mp utili și o terasă de 8 mp care surprinde perfect apusul.
Este amplasată la etajul 7 din 8, beneficiind de vedere liberă și multă lumină naturală pe tot parcursul zilei.
Blocul dispune de două lifturi moderne, optional loc de parcare subteran.
Apartamentul este complet mobilat și utilat, cu mobilier din MDF realizat pe comandă. Bucătăria este modernă și complet echipată cu electrocasnice Samsung și Bosch. Livingul este primitor, cu TV și șemineu electric, iar dormitorul este mobilat la comandă și dotat cu TV. Baia este spațioasă, cu finisaje de calitate, iar spațiile de depozitare sunt atent optimizate. Exact ca in poze.
Localizarea este excelentă, cu acces rapid către zona de business Pipera, Promenada Mall, metrou Aurel Vlaicu, transport STB, centre educaționale și clinici private, într-o zonă liniștită, dar foarte bine conectată.
O alegere ideală pentru locuit sau investiție, pentru cei care caută confort, funcționalitate și o vedere panoramica.
Pentru alte detalii sau vizionare ma puteti suna,
Rosana Oprea 0722618618