







Smart Estates are plăcerea de a vă prezenta spre vânzare un apartament premium de 2 camere, situat într-un complex rezidențial in inima zonei Pipera, pe unul dintre cele mai vibrante bulevarde ale zonei de Nord. Apartamenul are loc de parcare inclus si este complet mobilat si utilat -ideal pentru a fi achizitionat ca si investitie sau ca locuinta pe care sa o numesti acasa.
Dacă îți dorești un apartament modern, într-un complex exclusivist din nordul Bucureștiului, această proprietate este alegerea ideală.
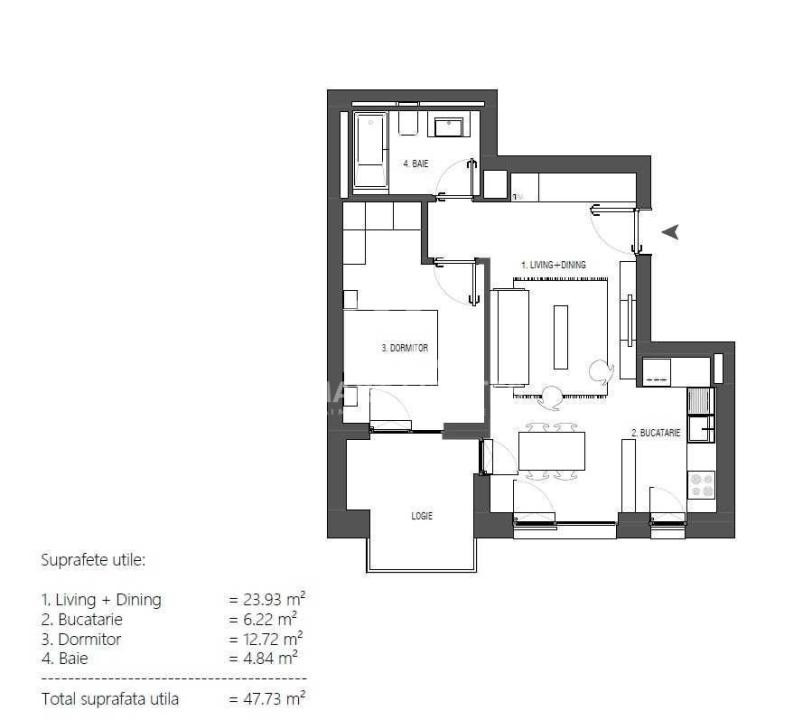
Detalii Proprietate
• 2 camere semidecomandate
• 48 mp utili + logie generoasă de 7 mp
• Etaj 3/4
• Complet mobilat & utilat (gata de mutare, mașina de spalat vase,masina de spalat rufe,uscător, TV, frigider, plită, cuptor)
• Loc de parcare subteran inclus (sistem Klaus – H max 1,50 m)
• Încălzire în pardoseală – centrală proprie a complexului (fără țevi vizibile în apartament)
Totul este într-o stare excelentă, finisaje moderne, atmosferă aerisită și luminoasă.
Locuiești într-un complex premium, cu facilități rare în București:
Piscină exterioară ecologică
Clubhouse cu restaurant & zonă de relaxare
Sală fitness / yoga
Spații verzi ample și alei de promenadă
Pază și acces securizat 24/7
Poziționare excelentă – aproape de zona de birouri Pipera, școli internaționale și Promenada Mall.
⸻
Localizare
Situat în zona Pipera – Voluntari, una dintre cele mai căutate zone rezidențiale din nordul Capitalei.
⸻
Ideal pentru:
• Locuință personală într-un mediu sigur și aerisit
• Investiție (zona are cerere ridicată pentru închiriere)
• Cupluri sau profesioniști care lucrează în zona de nord
Pentru mai multe detalii sau programarea unei vizionări, echipa Smart Estates vă stă la dispoziție.
Gabriela Antal : 0741105504