







































Smart Estates va propune spre vânzare un apartament tip duplex, situat în complexul rezidențial Monaco Towers, la etajele 19 și 20.
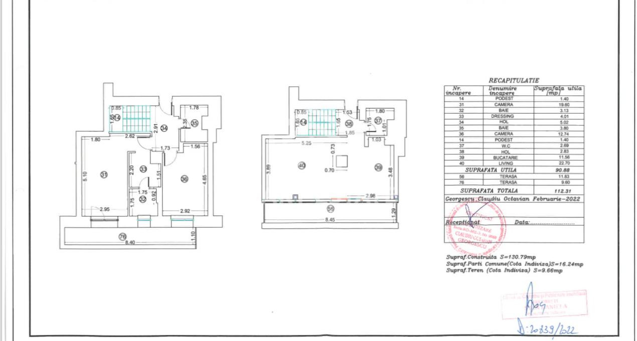
Proprietatea oferă o suprafață utilă totală de 112 mp, completată de două terase generoase de 12 mp și 9 mp, cu vedere panoramică asupra orașului.
Apartamentul este compartimentat eficient pe două niveluri și dispune de 3 camere spațioase, 3 băi și zone de living luminoase. Este vândut complet mobilat și utilat, fiind pregătit pentru mutare imediată.
Poziționarea la etajele superioare oferă lumină naturală pe tot parcursul zilei și o perspectivă spectaculoasă asupra orașului, ideală pentru cei care caută confort, spațiu și intimitate.
Compartimentare:
• Living generos cu acces pe terasă
• Bucătărie complet mobilată și utilată
• 2 dormitoare
• 3 băi
• 2 terase (12 mp și 9 mp)
Proprietatea este potrivită atât pentru locuire, cât și pentru investiție, fiind amplasată într-un complex bine conectat la facilitățile urbane.