







SMART ESTATES vă propune un apartament tip duplex situat într-o zonă liniștită și accesibilă, pe strada Emil Racoviță, Sector 4. Acest apartament modern, nou, este o alegere perfectă pentru cei care caută confort, spațiu și design contemporan.
Detalii Proprietate:
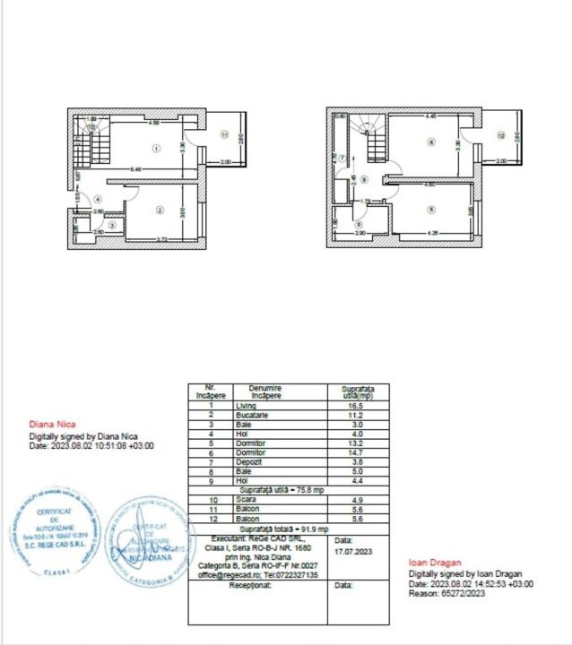
- Tip: Duplex
- Camere: 3
- Băi: 2
- Suprafață utilă: 96.5 mp
- Stare: Nou, finisaje de înaltă calitate
Preț proprietate: 185.000 EURO
Comision: 0%
Caracteristici Principale:
- Spațiu generos: Cele 3 camere sunt proiectate pentru a oferi lumină naturală și o atmosferă primitoare.
- Funcționalitate optimă: Cele două băi asigură confortul și intimitatea necesare unei familii.
- Localizare excelentă: Strada Emil Racoviță oferă acces rapid la mijloace de transport, școli, magazine și alte facilități.
- Calitate superioară: Construcție nouă, cu atenție la detalii și materiale premium.
Acest penthouse este o oportunitate rară pentru cei care doresc o locuință modernă, gata să devină acasă.
Contactează-ne acum pentru mai multe detalii sau pentru a programa o vizionare! COMISION ZERO!