

























Va propunem spre inchiriere un duplex cu suflet, aflat pe una dintre cele mai cunoscute si pline de rezonanta strazi ale Bucurestiului: Popa Nan. O zona vibranta, aflata in plina dezvoltare, unde casele vechi cu valoare arhitecturala se imbina armonios cu proiectele moderne, pastrand un farmec autentic si un caracter aparte.
Proprietatea se integreaza perfect in aceasta textura urbana deosebita si se remarca prin intrare directa din strada, curte proprie si spatii ample, usor de configurat atat pentru activitate office, cat si pentru locuire. Este un spatiu care inspira, un loc in care te poti imagina lucrand, locuind sau combinand fara efort cele doua planuri.
Duplexul este partial mobilat si poate fi adaptat cu usurinta in functie de stilul si nevoile viitorului chirias.
Avantaje principale:
- Situat pe str. Popa Nan – una dintre cele mai valoroase si autentice zone ale Bucurestiului
- Intrare separata direct din strada
- Curte proprie de aproximativ 80 mp
- Balcon inchis de 8 mp
- Posibilitati de parcare
- Contorizare separata pentru utilitati
- Centrala proprie si aer conditionat
- Bucatarie mobilata si utilata
- Baie pe fiecare nivel
- WC de serviciu la parter, cu un hol generos de aproximativ 10 mp – ideal ca spatiu de primire oaspeti
- Camere foarte mari, potrivite pentru birouri, locuire sau concept mixt
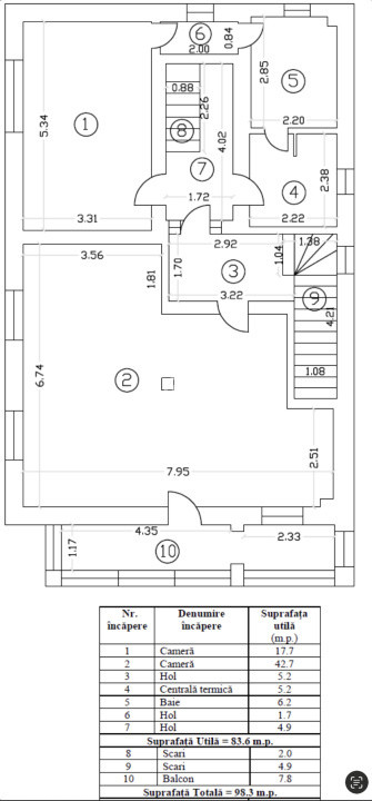
Etaj 1 – 84 mp utili + balcon 8 mp
- Camera 1 – 17.7 mp
- Camera 2 – 42.7 mp (open-space amplu)
- Holuri si spatii auxiliare – 11.8 mp
- Baie – 6.2 mp
- Bucatarie – 5.2 mp
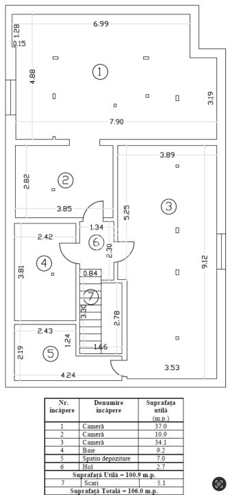
Mansarda – 100 mp
- Camera 1 – 37 mp
- Camera 2 – 11 mp
- Camera 3 – 34.1 mp
- Baie – 9.2 mp
- Spatiu depozitare – 7 mp
- Hol – 2.7 mp
Ideal pentru:
- firme IT, arhitectura, marketing, HR, consultanta
- concept locuire + birou
Va stau cu drag la dispozitie pentru detalii suplimentare si pentru programarea unei vizionari.