





















Va propunem spre vanzare o vilă tip duplex, spațioasă și luminoasă, situată în Pipera – Voluntari, într-un cartier rezidențial modern, cu străzi private, iluminat public și loc de joacă pentru copii.
Vila in suprafata de 220 mp utili și este amplasată pe un teren de 400 mp, fiind ideală pentru o familie care își dorește confort, intimitate și acces rapid către școli private, Băneasa Shopping, Grădina Zoologică și pădurea Băneasa.
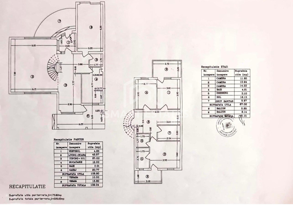
Finalizata in 2008 aceasta proprietate face parte dintr un ansamblu rezidential de case si este dispusă pe parter+ etaj+ mansarda,
dupa cum urmeaza:
PARTER: living generos și foarte luminos (42 mp), dining cu ieșire către terasa acoperită, bucătărie închisă (cu posibilitate de deschidere), garaj încălzit ce poate fi transformat într-o cameră suplimentară.
ETAJ: 3 dormitoare (două pot fi comasate), dormitor matrimonial cu dressing, baie proprie și balcon, plus terasă și spații de depozitare.
MANSARDA: spațiu open de peste 40 mp, ideal pentru birou, cameră de oaspeți sau loc de joacă.
Curtea este verde și intimă, cu vegetație matură, sistem de irigații și padoc pentru câine. Există locuri de parcare atât în curte, cât și pentru oaspeți. Orientarea sudică permite montarea de panouri solare.
Drumul de acces spre cartier (cca 1 km din sos Pipera Tunari) este modernizat, cu trotuare si iluminat public. Statia de autobuz (linia STV 488) este la iesirea din cartier.
O proprietate care îmbină perfect liniștea, spațiul și confortul, într-una dintre cele mai apreciate zone rezidențiale din Pipera.
Pentru alte detalii sau vizionare va rog sa ma sunati
Rosana Oprea 0722618618