












Casă Individuală S+P+1E+2R în Zona Trapezului, 4 dormitoare, 4 băi – 120 mp utili, Terasă, Curte Liberă | Comision 0%
SMART ESTATES vă propune spre vânzare o casă individuală solid construită, situată în zona Trapezului, cu regim de înălțime S + P + 1E + 2R, ideală pentru o familie care caută confort și spațiu într-o zonă liniștită, dar bine conectată urban.
Detalii construcție:
Suprafață utilă: 120 mp
Curte liberă: 60 mp
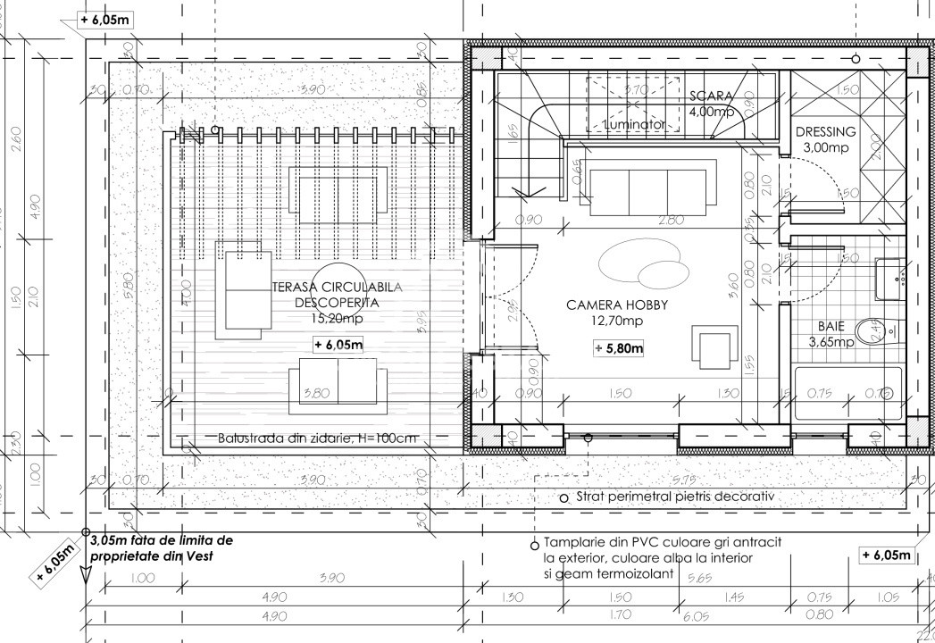
Compartimentare eficientă:
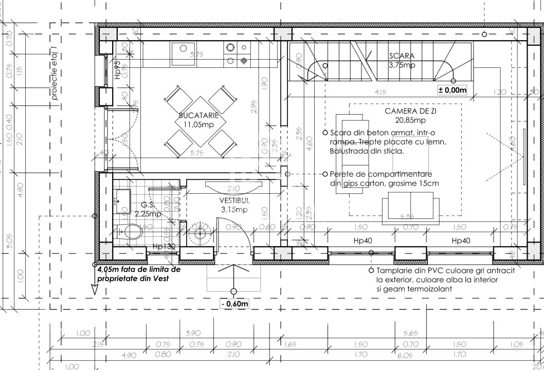
Parter: living, bucătărie, grup sanitar
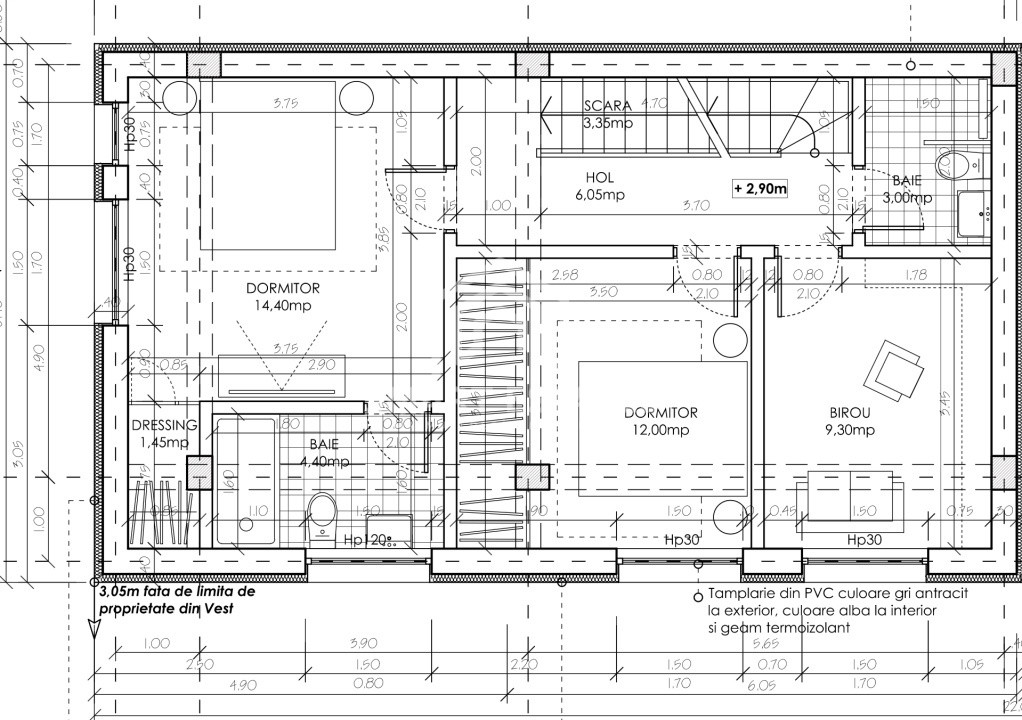
Etaj 1: 3 dormitoare, 2 băi, dressing
Etaj 2 retras: dormitor, baie, dressing, terasă descoperită de 15 mp
Subsol util pentru depozitare
Caracteristici tehnice:
Zidărie din cărămidă, pereți exteriori groși de 30 cm, pereți interiori de 15 cm
Termopane Salamander tripan, profil de 82 mm, geam reflexiv 4S, feronerie Roto
Centrala termică proprie (24 kW), curent trifazat, apă, canalizare, gaz
Preț: 270.000 euro + TVA
Comision: 0%
Pentru detalii suplimentare și programări la vizionare, nu ezitați să ne contactați.
Această proprietate oferă spațiu, calitate a construcției și o localizare convenabilă în Sector 3.