










Va propunem spre vanzare o vila moderna arhitectural si functionalitate ideala pentru familie, cu o buna impartire a spatiilor la interior, terasa, curte 60 mp si 4 locuri de parcare - situata in Pipera - Matei millo, cu acces imediat in str Popasului - A3.
Proprietatea are o suprafata de 200 mp utili - Parter+ etaj+ mansarda si este compusa din 6 camere si 4 bai cu 60 mp de curte privata.
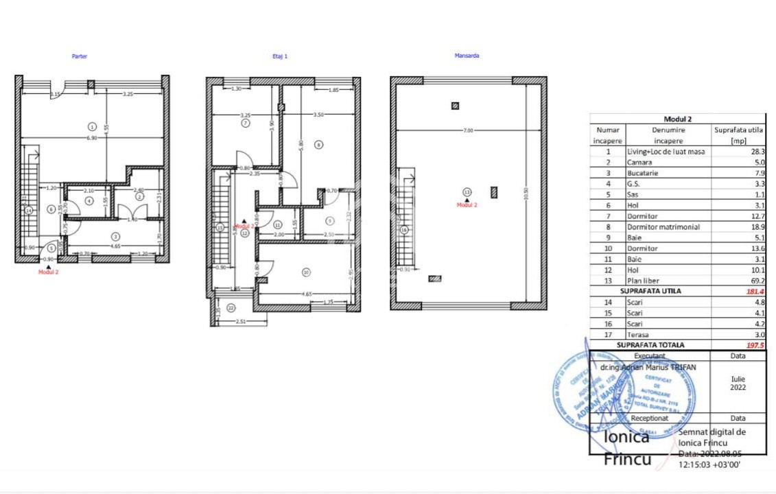
Compartimentare:
PARTER: suprafata utila de 54 mp compus din:
hol intrare
living cu dining de 28,3 mp
bucatarie inchisa de 8 mp
camara de 5 mp
grup sanitar de 3,3 mp
ETAJ in suprafata utila de 80 mp compus din:
dormitor matrimonial 19 mp + baie proprie 5 mp
2 dormitoare secundare de 16 mp si 12,7 mp
baie secundara de 3 mp
MANSARDA openspace 65 mp : dormitor cu SPA si Sauna.
Dotari si facilitati:
dotari si finsaje premium la alegere
pompa de caldura
incalzire in pardoseala
tâmplărie PVC cu geam Tripan calitate superioara
automatizare: caldura, poarta - controlate din smartphone
usa de intrare metalica antiefractie cu luminator
optional panouri fotovoltaice
pereti caramida poroterm 25 cu polistiren 10 cm si interioara vata minerala 5cm si rigips.
PARCARE: 4 locuri
*Finisajele prezentate in poze sunt cu titlu informativ, finisajele la interior vor fi finalizate intr un interval de 3 luni de la semnarea precontractului. Vila poate fi achizitionata si la stadiul de gri la pretul de 420 000 Euro.
Situata intr o zona de mare interes, in proximitate se gasesc centre comerciale, supermarketuri, sali de sport (World Class Planet Sport cu bazin de inot) si restaurante in imediata apropiere - Lemon Park, Plaza Pipera, Baneasa Shopping City, Hornbach, etc
- unitati educationale si de invatamant: gradinite de stat si private; scoli de stat si private;
- conectare rapida la A3- conectare rapida cu zona de business din NOrdul Bucurestiului, A0 si centura Bucuresti
Pentru mai multe detalii sau vizionare nu ezitati sa ma sunati,
Rosana Oprea 0722618618