





























Se oferă spre vânzare o proprietate deosebită, construită cu atenție la detalii, materiale premium și soluții tehnice moderne, ideală atât pentru locuit, cât și pentru investiție.
Imobilul este amplasat pe un teren de 174 mp, având o amprentă la sol de 109 mp, curte liberă de aproximativ 65 mp, cu posibilitate de parcare pentru 2 autoturisme în curte.
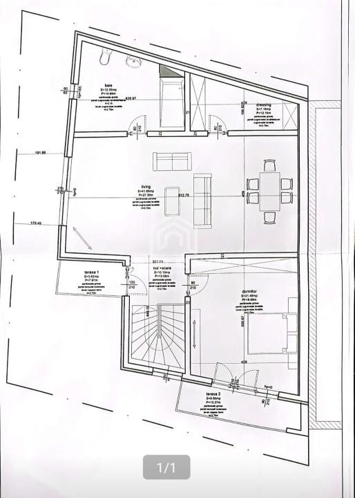
Proprietatea are un regim de înălțime P+1E + subsol, cu o compartimentare foarte practică și generoasă, fiind gândită inteligent pentru confort, funcționalitate și intimitate.
Suprafață utilă:
• Parter: aproximativ 90 mp utili
• Etaj: aproximativ 95 mp utili
• Subsol: aproximativ 28 mp utili
Compartimentare:
Parterul și etajul sunt compartimentate aproape identic, în oglindă, cu o diferență practică între cele două niveluri:
• la parter există bucătărie
• la etaj există dressing, cu geam și lumină naturală
Proprietatea dispune de:
• 2 livinguri spațioase
• 2 dormitoare foarte generoase
• 2 grupuri sanitare
• 2 holuri – aproximativ e
• 1 bucătărie – aproximativ
• 1 dressing – aproximativ
• 2 terase – aproximativ 10 mp și 4 mp
Locuința este ideală pentru cei care caută spații mari, bine compartimentate și luminoase, cu o senzație reală de confort și intimitate.
⸻
Dotări și finisaje premium
Proprietatea se diferențiază clar prin nivelul ridicat al materialelor și al execuției, fiind construită pentru durabilitate, eficiență și confort.
Construcție și izolație:
• Zidărie la parter din cărămidă, cu pereți de aproximativ 38 cm
• Etaj pe structură din lemn, realizat corect și eficient
• Izolație exterioară cu polistiren grafitat EPS 100
• Izolație interioară cu spumă Huntsman, cu garanție pe viață
• Compartimentări interioare realizate cu Rigips Knauf
Instalații și confort:
• Încălzire în pardoseală TECE în toată casa
• Fără calorifere
• Centrală termică Viessmann
• Sistem cu pompe
• 2 distribuitoare x 9 circuite
• Alimentare electrică 380V / 220V
• Proprietatea dispune și de puț forat la a doua pânză freatică
Finisaje și elemente premium:
• Tâmplărie premium Salamander (Germania)
• Acoperiș Bilka Premium, cu durată de viață estimată / garanție de până la 25 ani
• Uși magnetice în toată casa
• Parchet impermeabil
• Balustrade securizate
• Soclu placat cu marmură
Totul a fost ales cu accent pe calitate, rezistență și aspect modern, astfel încât viitorul proprietar să beneficieze de o locuință completă, eficientă și elegantă.
⸻
Avantaje reale ale proprietății:
• compartimentare foarte bună
• camere mari și bine proporționate
• încălzire în pardoseală integrală
• materiale premium
• izolație foarte bună
• curte proprie
• locuri de parcare
• subsol util
• terase
• ideală pentru familie sau utilizare mixtă
Această proprietate este potrivită pentru cumpărătorii care caută mai mult decât o casă standard — o locuință construită solid, bine gândită și pregătită pentru confort pe termen lung.
Pentru mai multe detalii, fotografii sau programarea unei vizionări, mă puteți contacta în privat.